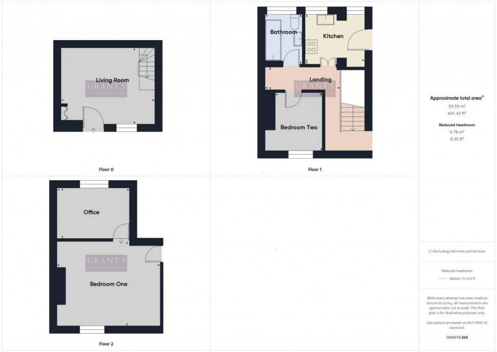
We are delighted to offer For Rent, this two bedroom town house located a short walk from the centre of Ashbourne. The property is arranged over three levels and benefits from gas central heating, double glazing and on street parking. The accommodation comprises; Living/dining room, kitchen, two bedrooms, family bathroom and a separate office space. The property also offers a pleasant decking area ideal for alfresco dining with rooftop views. Pets considered. Non-smokers. Available now!
The property is accessed via the uPVC front door which opens into the
A spacious living room with ceramic tiled flooring and space for dining table and chairs. TV unit and front aspect uPVC window. Stairs lead up to the
On arrival at the first floor landing we find access to the bathroom, bedroom two and
With a ceramic tiled floor and a range of matching wall, base and drawer units with complimentary wood effect worktop, inset stainless steel, one and a half bowl sink with mixer tap over. Integrated appliances include electric oven with extractor hood over and metro tiled splash backs. There is also space and plumbing for a washing machine and additional space for a freestanding fridge freezer. dishwasher, gas hob with a designer extractor hood over. A part glazed uPVC door provides external access.
This modern fully tiled family bathroom is fitted with a three piece suite comprising dual flush WC, pedestal hand wash basin, panelled bath with thermostatic shower attachment shower screen. There is an obscure glass uPVC double glazed window to the rear aspect, ceramic tiled flooring and chrome heated towel rail.
With wood laminate flooring and window to the front aspect.
From the first floor landing staircase leads up to the second floor where we find access to
A good sized double bedroom with uPVC window to the front aspect and feature fireplace. An opening provides access to the
With uPVC window to the rear aspect and pleasant outlook of the rear garden. This space offers use for an office/walk-in wardrobe or nursery.
Stone steps lead up to a pleasant decking area ideal for alfresco dining with rooftop views.
We are informed by Derbyshire Dales District Council that this home falls within Council Tax Band A which is currently £1555 per annum.


