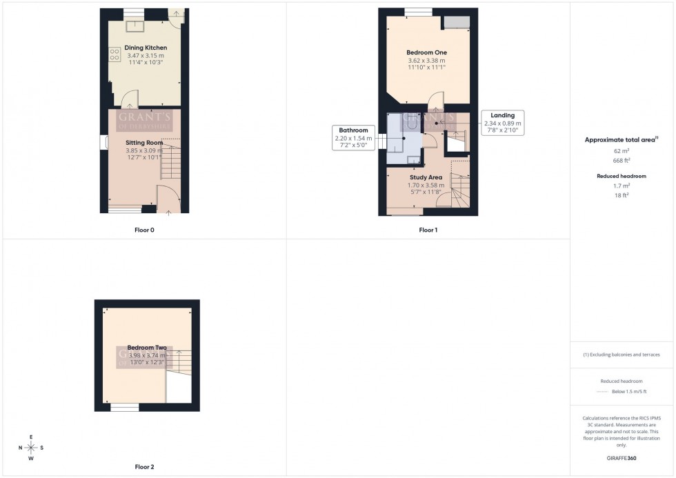
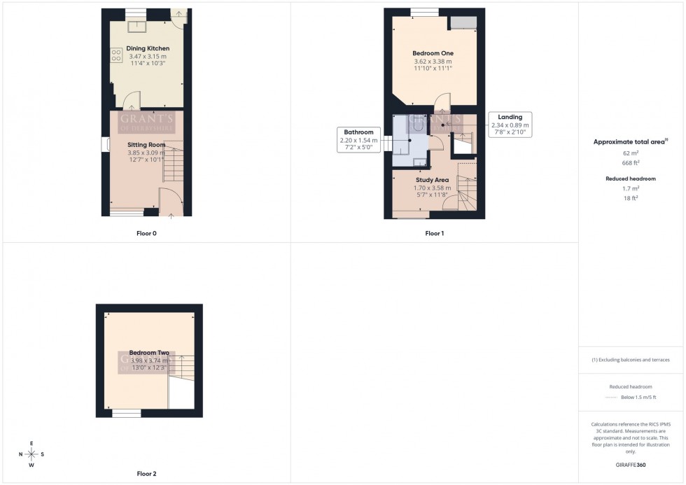
Located on highly sought-after Greenhill, just a short stroll from Wirksworth town centre, this delightful end-terraced cottage enjoys a truly desirable setting close to local amenities, shops and countryside walks.
Full of charm and character, the accommodation is arranged over three floors and briefly comprises a cosy sitting room, a dining kitchen, a bathroom, two generous double bedrooms and a large landing area. The property is well presented throughout and benefits from gas central heating and double glazing.
To the rear, a fully enclosed courtyard garden provides a private, low-maintenance outdoor space.