Located in a peaceful cul-de-sac close to the centre of the sought-after town of Matlock, this semi-detached two-bedroom bungalow presents an excit...
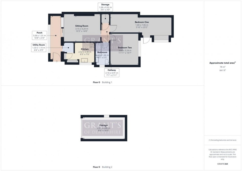
Located in a peaceful cul-de-sac close to the centre of the sought-after town of Matlock, this semi-detached two-bedroom bungalow presents an exciting opportunity and is offered with no upward chain. The property features gas central heating and double glazing throughout and the accommodation includes: Entrance Porch, Utility Room, Kitchen, Two Bedrooms and Family Bathroom. Externally, the home benefits from a private driveway providing off-road parking, a garage, and a south-facing rear garden - ideal for enjoying the sunshine or creating your dream outdoor space. With fantastic potential to modernise and personalise, early viewing is highly recommended.