Grant's of Derbyshire are pleased to offer For Let this part furnished, two bedroom, terraced cottage in the sought after town of Wirksworth. The p...
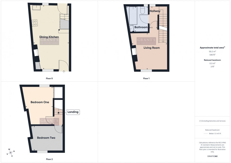
Offered with No Upward Chain and located in the heart of the very popular historic market town of Wirksworth, is this two bedroom terraced cottage available For Sale. The home benefits from gas central heating and is well presented throughout. The accommodation briefly comprises; kitchen dining area to the ground floor, sitting room and bathroom to the first floor and two double bedrooms to the second floor. There is also a shared courtyard to the rear of the property. On Street Parking Available. Ideal Investment / First Time Buy.